您当前使用的浏览器版本过低,可能存在安全风险,建议升级浏览器,或者用以下浏览器浏览
近期,国家持续优化住房政策体系,构建多层次住房供应结构,保障不同群体的住房需求。从保障性租赁住房新规的出台,到对改善型住房的支持,政策红利不断释放,为房地产市场注入新活力。在这一背景下,苏州高铁新城的优质住宅项目——江南云起,正以其独特的魅力,成为改善居住品质的理想之选。
象屿江南云起,坐落于苏州高铁新城核心区域,项目总占地面积约3.38万平方米,总建筑面积约11.4万平方米,可售面积约7.77万平方米。整个社区由8幢低密洋房和3幢宽景高层住宅组成,共计578户。洋房面积段为143㎡和168㎡,高层则为103㎡和118㎡。项目采用一线品牌精装房交付,打造智能生活场域,包括7大收纳空间和3大智慧居住场景。社区内还配置了双入户大堂和车库星空顶等高品质公区设施,让归家成为一种享受。开发商为苏州高辰置业有限公司,全社区配建车位数约953个,车位配比约1:1.53,充分满足业主停车需求。项目地址位于苏州相城苏州高铁新城齐门北大街东、马泾路北。
无界苏州生活圈,通达长三角朋友圈,江南云起的地理位置得天独厚。项目周边有苏州北站高架路和中环北线号线号线双线直达,无论是前往园区还是市区,都能畅行无阻,轻松融入苏州生活圈。
对于有孩子的家庭来说,教育资源尤为重要。江南云起周围环绕着南京师范大学相城实验小学、南京师范大学苏州实验小学、南京师范大学苏州实验学校幼儿园以及南京师范大学苏州实验学校(高中部)等名校(非学区承诺),让孩子从小就能在书香氛围中成长。
购物休闲同样便捷,项目位于苏州高铁新城发展的重要区域,直通吾悦广场,实现24小时家门口的全维度消费体验。此外,圆融购物中心、芯光里商业街和大悦城等商业配套也近在咫尺,满足日常购物、餐饮、娱乐等各种需求。
江南云起由象屿集团倾力打造,象屿集团是厦门市属国有企业,2023年在《财富》世界500强中位列第142位,2022年总营收达5600亿元,实力雄厚。集团业务涵盖大宗商品供应链、城市开发运营、综合金融服务、港口航运和创新孵化等多个领域,致力于成为具有全球竞争力的综合性投资控股集团。
象屿地产采用一体两翼业务战略布局,以住宅为核心,商发、物业为两翼,深耕长三角、海西、成渝核心都市圈。业务范围覆盖上海、江苏、浙江、天津、福建、重庆、河北等多个区域。此次象屿地产再次择址苏州高铁新城,正是对这片热土的信心与承诺,为苏州人民共创至美生活。
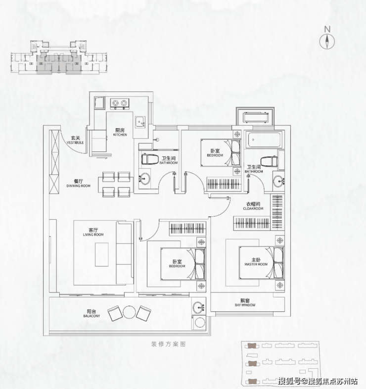
A户型——云庭103㎡三室两厅两卫,采用全明格局设计,三开间朝南,确保室内光线充足。大面宽双联阳台让阳光和美景自然入户,LDK一体化客餐厨设计让家庭生活更加从容自在。主卧配备大飘窗和独立卫浴,私密性与舒适度兼具。
B户型——云境118㎡三室两厅两卫,拥有南向三开间的超大宽幕视野,阳光旖旎。双联阳台设计带来南向大采光面,通透全明。灵动三房设计可根据家庭需求灵活变化,动静分区兼顾舒适与私密。
C户型——听云处143㎡四室两厅两卫,独立入户玄关彰显气度,重塑生活秩序。奢阔尺度下,南向瞰景阳台连接宽厅,延景入室,拥抱阳光。L型厨房采用人体工学设计,搭配全域高定配置,让烹饪成为一种享受。户型方正,南北通透,4房设计自由多变,满足您对舒适生活的想象。
D户型——跃云间168㎡四室两厅三卫,通透方正,超高得房率,展现难得的生活尺度。多功能美学玄关柜设计,巧妙收纳生活美好。LDKB一体设计巧妙链接,创造层次化的家庭生活场景。全区飘窗设计,让您随时享受阳光与自然。
首先,品牌实力雄厚。由象屿集团开发,作为厦门市属国有企业和世界500强企业,象屿集团拥有丰富的开发经验和强大的资金实力,能够保障项目品质。
交通条件优越,周边有苏州北站高架路、中环北线号线号线,可快速通达园区及市区,畅行苏州生活圈。
配套设施完善,商业方面直通吾悦广场,周边有圆融购物中心、芯光里商业街和大悦城等;教育方面有南京师范大学系列名校环绕;医疗和休闲资源也十分丰富,3公里范围内有17个公园,生态环境优越。
小区规划独具匠心,由8幢低密洋房和3幢宽景高层组成,是苏州高铁新城少见的洋房项目。社区以流云浮动和氤氲水系元素为设计灵感,融合江南小桥流水文化韵味,打造五进礼序空间。外立面采用高品质材质,配置双入户大堂、车库星空顶等,公区品质高。
户型设计合理,从103㎡到168㎡不等,满足不同家庭需求。各户型均注重采光和通风,LDK一体化设计让空间更加通透,动静分区兼顾舒适与私密。
装修配置精良,精装房交付,配置入户子母门,玄关柜有七大区域收纳空间,客厅电视背景墙整体岩板交付,厨房有油烟机等四件套并增设凉霸,卫浴空间有智能挂壁马桶等四件套,还配备电热毛巾架、美妆冰箱等,全面提升居住品质。
随着苏州城市发展战略的持续推进,苏州高铁新城作为苏州北部的重要增长极,未来发展潜力巨大。江南云起位于苏州高铁新城核心区域,将充分享受区域发展红利。从交通网络到商业配套,从教育资源到生态环境,这里正在形成一个宜居宜业的现代化城区。
结合国家住房政策的多元化发展方向,江南云起作为高品质改善型住房,不仅满足了市民对美好生活的向往,也为城市可持续发展贡献了力量。未来,随着周边配套的不断完善和区域价值的持续提升,江南云起将成为苏州宜居生活的典范,为业主带来资产增值和品质生活的双重价值。
苏州高铁新城143/168㎡限藏洋房火热销售中,103/118㎡天幕高层作品即将面世。江南云起美学示范区地址:苏州高铁新城马泾路218号。
声明:本文由入驻焦点开放平台的作者撰写,除焦点官方账号外,观点仅代表作者本人,不代表焦点立场。
露香园馥公馆售楼处2025官方首页网站馥公馆售楼处电话在售户型小区配套最新价格周边详情容积率楼盘详情
露香园馥公馆售楼处电话:【预约看房热线】露香园馥公馆官方售楼处电线【售楼处电话/地址】露香园馥公馆售楼处电话:【开发商认证】露香园馥公馆是黄浦区豫园板块的高端住宅项目,主打110-185㎡,均价10.8万/㎡,提供
露香园馥公馆(2025)上海露香园馥公馆售楼处电话楼盘百科露香园馥公馆首页网站楼盘百科首页网站24小时热线电话
露香园馥公馆售楼处电话:【预约看房热线】露香园馥公馆官方售楼处电线【售楼处电话/地址】露香园馥公馆售楼处电话:【开发商认证】露香园馥公馆是黄浦区豫园板块的高端住宅,主打110-185㎡户型,采用法拍方式销售,
露香园馥公馆 (售楼处) 首页 - 馥公馆销售中心 - 环境 - 户型 - 馥公馆价格 - 地址 - 楼盘详情 - 配套 - 电话 - 交房时间 - 配套 - 电话 - 交房时间
露香园馥公馆售楼处电话☎:【售楼处预约热线】(一对一热情服务)是黄浦区豫园板块的住宅项目,主打110-185㎡,均价10.8万/㎡,70年产权,现通过法拍销售,实景现房,可预约看房。
万科中兴傲舍(万科中兴傲舍售楼处电线年万科中兴傲舍首页网站-万科中兴傲舍楼盘详情 /价格/户型
万科中兴傲舍售楼处电话:【预约看房热线】万科中兴傲舍售楼处电线【售楼处电话/地址】万科中兴傲舍售楼处电话:【开发商认证】万科中兴傲舍静安内环翡翠系豪宅,精装交付,南向公园,均价12.8万/㎡,热销中。
万科中兴傲舍(2025)上海万科中兴傲舍售楼处电话楼盘百科万科中兴傲舍首页网站楼盘百科首页网站24小时热线电话
万科中兴傲舍售楼处电话:【预约看房热线】万科中兴傲舍售楼处电线【售楼处电话/地址】万科中兴傲舍售楼处电话:【开发商认证】万科中兴傲舍静安内环翡翠系豪宅,售楼处电线㎡精装豪宅,南向公
招商序(售楼处)首页网站-2025招商序营销中心(售楼处电话)-招商序欢迎您-小区配套-户型-价格-地址-楼盘详情-户型-售楼处电线
兰香湖贰号售楼中心-(兰香湖贰号售楼处)2025兰香湖贰号楼盘详情-最新房价-首页网站-户型配套
龙湖御潮印(龙湖御潮印售楼处)首页网站-2025龙湖御潮印房价_楼盘评测丨地址丨详情丨售楼处电线
建工EIC(建工EIC售楼处)首页网站-2025建工EIC营销中心(售楼中心)小区欢迎您-售楼处电话-建工EIC售楼处地址-户型-价格-楼盘详情-交房时间-一房一价
建工EIC售楼处2025官方首页网站杭州建工EIC售楼处电话在售户型小区配套最新价格周边详情容积率楼盘详情



